安城市・刈谷市・知立市・高浜市・岡崎市で注文住宅、リフォームを手がけるナイスホーム。
リフォーム・リノベーション
お問い合わせ
CONTACT US ABOUT NEW HOUSE
お電話でのお問い合わせ
営業時間 10:00〜18:00
定休日 火曜日・水曜日
LINEでのお問い合わせ
CONTACT US ABOUT REFORM & RENOVATION
お電話でのお問い合わせ
営業時間 10:00〜18:00
定休日 火曜日・水曜日
トップ > 物件情報 - 新築分譲 > 新築分譲
| 所在地 | 高浜市小池町5丁目3-104 | 面積 |
敷地面積/138.16㎡(41.79坪) 建物面積/107.65㎡(32.49坪) |
|---|---|---|---|
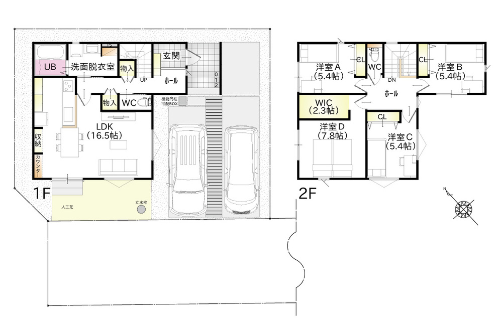
| 交通 | 名鉄三河線「吉浜」駅 徒歩14分(1.1km) | 間取り | 4LDK+WIC |
| 完成予定時期 (築年日) |
令和 8年 3月 | 価格 | 4,160万円 |
| 環境 | 南道路 / 小学校徒歩10分以内 / 閑静な住宅街 / 前面道路6m以上 | ||
| 標準仕様 |
パナソニックキッチン
/
キッチンカップボード
/
食器洗い乾燥機
/
IHクッキングヒーター
/
パナソニックバスルーム
/ パナソニック洗面ドレッシング / 3面鏡洗面台 / パナソニック製トイレ / 温水洗浄便座 / 全室カーテン付き / 全室照明付き / 居室複層ガラス |
||
キッチンパントリー
/
玄関収納
/
リビング収納
/
ウォークインクローゼット
/
全居室収納有り
/
対面カウンターキッチン
/
お庭有り
該当物件はB棟です。
共有通路には地役権と所有権を設定する予定です。






| 物件名称 | サーシア高浜小池II B棟 | 地目 | 宅地 |
|---|---|---|---|
| 所在地 | 高浜市小池町5丁目3-104 | 面積 |
敷地面積/138.16㎡(41.79坪) 建物面積/107.65㎡(32.49坪) |
| 交通 | 名鉄三河線「吉浜」駅 徒歩14分(1.1km) | 間取り | 4LDK+WIC |
| 完成予定時期 (築年日) |
令和 8年 3月 | 価格 | 4,160万円 |
| 都市計画 | 市街化区域 | 総戸数 | 3 |
| 用途地域 | 1種住居 | 販売戸数 | 3 |
| 建蔽率 | 60% | 地勢 | 平坦 |
| 容積率 | 200% | 現況 | 建築中 |
| 土地権利 | 所有権 | 工法・仕様 | 長期優良住宅 / ZEH対応住宅 / オール電化住宅 / 太陽光発電 / 在来木造軸組工法 |
| 建物構造 | 木造 | 建物規模 | 地上2階 |
| 法令制限等 | 法22条区域 | 取引態様 | 売主 |
| バルコニー方向 | 建築確認 | 第R07確変建築CI東海A70331号 | |
| 接道状況 | |||
| (1) | 方角:東南 道路幅員:6.06m 接道間口:4.5m | ||
| (2) | |||
| (3) | |||
| 角地 | |||
お客様の個人情報は、弊社個人情報保護方針により厳密に管理いたします。
また、お客様の同意を得ないで外部へ提出することはいたしません。